特点及用途
广泛应用于化工、食品、建材等各种工业部门,主要用于化工和医药食品工业中的真空蒸馏、真空蒸发、真空干燥和真空过滤、真空结晶、真空浓缩,电气工业中的真空浸渍,冶金工业的真空除气及混凝土的真空作业。

主要技术参数
|
型 号 |
W-50 |
W-70 |
W4-1 |
W-100 |
W-150 |
W5-1 |
W-200 WY-200 |
W6-1 |
|
WY-50 |
WY-100 |
|
抽气速率L/S(m3/min) |
50(3) |
70(4.2) |
100(6) |
100(6) |
150(9) |
200(12) |
200(12) |
300(18) |
|
极 限 真 空 Kpa(Torr) |
1.3(10) |
2.6(20) |
2.6(20) |
1.3(10) |
2.6(20) |
2.6(20) |
1.3(10) |
2.6(20) |
|
转 速(r/min) |
300 |
360 |
530 |
200 |
300 |
430 |
200 |
285 |
|
配用电动机型号 |
Y132S-4 |
Y160M-6 |
Y160M-4 |
Y160L-6 |
Y180L-6 |
Y200L2-6 |
Y200L2-6 |
Y225M-6 |
|
配用功率(kw) |
5.5 |
7.5 |
11 |
11 |
15 |
22 |
22 |
30 |
|
气缸内径×行程(mm) |
250×150 |
250×150 |
250×150 |
350×200 |
350×200 |
350×200 |
455×250 |
455×255 |
|
进出水管口径(in) |
1/2 |
1/2 |
1/2 |
3/4 |
3/4 |
3/4 |
3/4 |
3/4 |
|
进出气管口径(in) |
2 |
4 |
4 |
5 |
5 |
5 |
5 |
5 |
|
外形尺寸 (mm) |
长 |
1420 |
1533 |
1480 |
1773 |
1946 |
1840 |
2328 |
2475 |
|
宽 |
615 |
503 |
515 |
800 |
654 |
668 |
1010 |
756 |
|
高 |
640 |
640 |
537 |
891 |
812 |
587 |
1162 |
1138 |
|
重量(kg)(不含电机) |
400/420 |
440 |
440 |
740/790 |
800 |
800 |
1200 |
1670 |
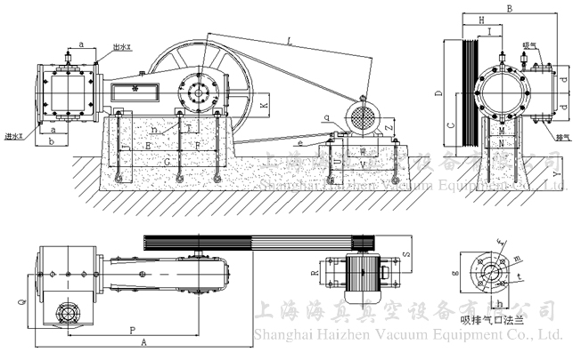
W-50/100外型尺寸

|
尺寸 型号 |
A |
B |
C |
D |
E |
F |
G |
H |
I |
J |
K |
L |
M |
N |
P |
Q |
R |
S |
|
W-50 (W3) |
1411 |
628 |
390 |
640 |
430 |
260 |
815 |
283 |
198 |
500 |
186 |
910 |
200 |
260 |
883 |
235 |
140 |
249 |
|
W-100 (W4) |
1810 |
776 |
500 |
891 |
520 |
330 |
1036 |
356 |
244 |
600 |
200 |
1430 |
260 |
326 |
1083 |
296 |
254 |
368 |
|
尺寸 型号 |
T |
U |
V |
W |
Y |
Z |
X |
a |
b |
d |
e |
f |
g |
h |
m |
n |
q |
t |
|
W-50 (W3) |
130 |
400 |
540 |
216 |
500 |
132 |
G1/2” |
170 |
205 |
156 |
M16 |
Φ125 |
Φ165 |
70 |
G2” |
M16 |
Φ12 |
Φ17 |
|
W-100 (W4) |
165 |
400 |
570 |
254 |
520 |
160 |
G3/4” |
198 |
247 |
200 |
M16 |
Φ155 |
Φ190 |
84 |
G3” |
M20 |
Φ15 |
Φ18 |
WY-50/100/200外型尺寸

|
尺寸 型号 |
A |
B |
C |
D |
E |
F |
G |
H |
I |
J |
K |
L |
M |
N |
P |
Q |
R |
S |
|
WY-50 (W3) |
1411 |
625 |
390 |
640 |
430 |
260 |
815 |
283 |
198 |
500 |
186 |
910 |
200 |
260 |
883 |
235 |
140 |
248 |
|
WY-100 (W4) |
1780 |
767 |
500 |
891 |
520 |
330 |
1036 |
356 |
244 |
600 |
220 |
1430 |
260 |
326 |
1083 |
296 |
254 |
368 |
|
WY-200 (W5) |
2335 |
1010 |
650 |
1162 |
655 |
400 |
1255 |
417 |
253 |
600 |
260 |
1340 |
290 |
370 |
1396 |
430 |
305 |
460 |
|
尺寸 型号 |
T |
U |
V |
W |
Y |
Z |
X |
a |
b |
d |
e |
f |
g |
h |
m |
n |
q |
T |
|
WY-50 (W3) |
130 |
400 |
540 |
216 |
500 |
132 |
G1/2” |
170 |
205 |
156 |
M16 |
Φ125 |
Φ165 |
70 |
G2” |
M16 |
Φ12 |
Φ17 |
|
WY-100 (W4) |
165 |
400 |
570 |
254 |
520 |
160 |
G3/4” |
193 |
247 |
200 |
M16 |
Φ155 |
Φ190 |
84 |
G3” |
M20 |
Φ15 |
Φ18 |
|
WY-200 (W5) |
200 |
500 |
710 |
318 |
550 |
200 |
G3/4” |
299 |
358 |
300 |
M20 |
Φ200 |
Φ250 |
100 |
G5” |
M24 |
Φ19 |
Φ22 |
W-70/W4-1/W-150/W5-1外型尺寸

|
尺寸 型号 |
A |
B |
C |
D |
E |
F |
G |
H |
I |
J |
K |
L |
M |
N |
P |
Q |
R |
S |
|
W-70 |
1490 |
508 |
400 |
542 |
430 |
260 |
815 |
278 |
192 |
500 |
186 |
960 |
200 |
260 |
883 |
50 |
210 |
323 |
|
W4-1 |
1490 |
508 |
400 |
542 |
430 |
260 |
815 |
278 |
192 |
500 |
186 |
960 |
200 |
260 |
883 |
50 |
210 |
323 |
|
W-150 |
1927 |
633 |
500 |
772 |
520 |
330 |
1035 |
357 |
213 |
600 |
220 |
800 |
260 |
326 |
1112 |
83 |
279 |
408 |
|
W5-1 |
1812 |
659 |
500 |
542 |
520 |
330 |
1035 |
383 |
213 |
600 |
220 |
935 |
260 |
326 |
1112 |
83 |
305 |
463 |
|
尺寸 型号 |
T |
U |
V |
W |
Y |
Z |
X |
a |
b |
d |
e |
f |
g |
m |
n |
q |
T |
|
|
W-70 |
130 |
400 |
540 |
254 |
600 |
160 |
G1/2” |
170 |
333 |
260 |
M16 |
125 |
165 |
G4” |
M16 |
Φ15 |
Φ19 |
|
|
W4-1 |
130 |
400 |
540 |
254 |
600 |
160 |
G1/2” |
170 |
333 |
260 |
M16 |
155 |
190 |
G4” |
M16 |
Φ15 |
Φ19 |
|
|
W-150 |
165 |
500 |
570 |
279 |
700 |
180 |
G3/4” |
232 |
429 |
325 |
M16 |
200 |
250 |
G5” |
M20 |
Φ15 |
Φ19 |
|
|
W5-1 |
165 |
500 |
710 |
318 |
700 |
200 |
G3/4” |
232 |
429 |
325 |
M16 |
200 |
250 |
G5” |
M20 |
Φ20 |
Φ19 |
|
W6-1外型尺寸

特性曲线
